We wanted to share an update on our 2026 Parade of Homes modern estate in North Raleigh’s Brixley community.
Blog |
2026 Parade of Homes Modern Estate Update
We wanted to share an update on our 2026 Parade of Homes modern estate in North Raleigh’s Brixley community.

This contemporary home features a chef’s kitchen with a professional 48″ range, built-in refrigerator, and a fully equipped scullery. The main level includes a primary suite and private guest suite, while upstairs offers three ensuite bedrooms, media room, and bonus room. Pella windows and doors are used throughout.
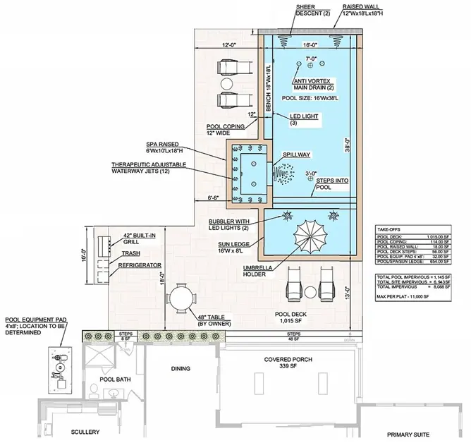
Outside is where this property truly shines. A gunite saltwater pool and spa with a dedicated pool bath and shower anchors the backyard, surrounded by a full outdoor kitchen, phantom screened porch with Infratech heaters, and lush curated landscaping — resort-level living on a private wooded lot.
To schedule a showing or learn more about our upcoming builds, reach out to us directly.
If you have questions, reach out to our team.
We are always glad to walk through the details. please contact us today.